Giới thiệu

Thiết kế nhà phố Bình Tân hiện đại

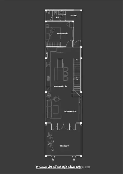
Thông tin dự án
Địa điểm

Địa điểm

Bình Tân - TP Hồ Chí Minh

Diện tích

Diện tích

Mặt tiền 5m

Năm hoàn thành

Năm hoàn thành

2021

Thư viện ảnh
Image
Image
Image
Image
Image
Image
Image